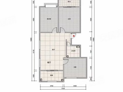
丽天苑小区(东区)|花冠路3室2厅1卫106平方
46 万
报价 ![]()
3 室 2 厅 1 卫
户型
106 ㎡
建筑面积
- 单价4340.0元/㎡
- 楼层高层(共17层)小程序咨询楼层
- 朝向南类型普通住宅
- 装修精装修年代 2015年
- 小区丽天苑小区(东区)
【房屋简介】2015年建,高层电梯房,布局合理,无浪费空间;餐厅客厅独立,三室两厅一卫,南北通透,阳光充足;精装修,保养好,拎包即住;基础设施完善,周边配套齐全,生活便捷。 【推荐理由】视野开阔,光线充足,享受城市美景;朝向良好,居住舒适;楼层位置优越,安静无噪音干扰。产权清晰,满五 ,交易成本低。
房东已委托挂牌,诚心出售,感兴趣的随时咨询,欢迎您看房
作为房产经纪人,我拥有丰富的经验和专业的知识,特别擅长商业贷款、公积金、转按揭等房屋买卖业务。我的信息维护能力强,与业主关系密切,能确保交易流程顺利进行。我服务热情周到,专业真诚,许多客户都愿意将亲友介绍给我。我的目标是帮助每一位客户找到满意的家,提供全方位的 服务。
展开全部信息

